Projeto desenvolvido com o escritório de arquitetura Laura Rocha.
Condomínio de casas com vista espetacular para skyline dos Jardins e Avenida Paulista e vista exuberante do Jockey Club.
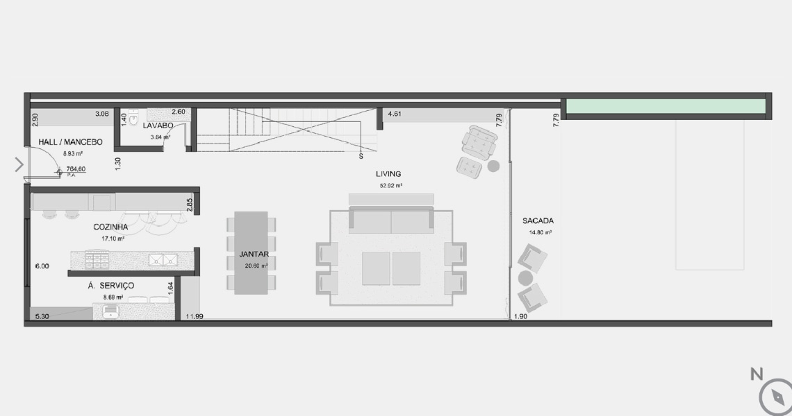
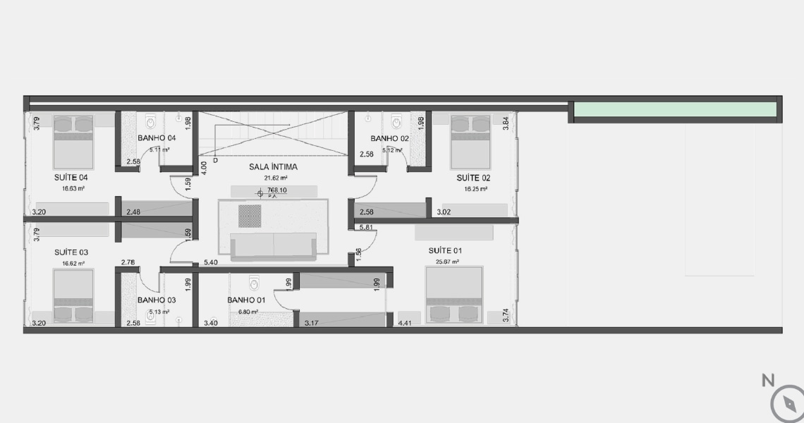
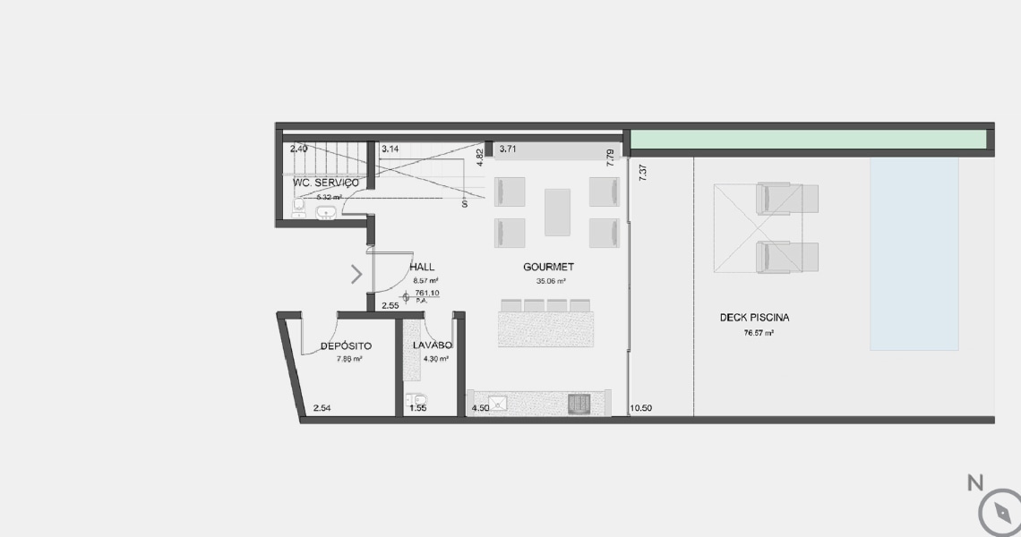
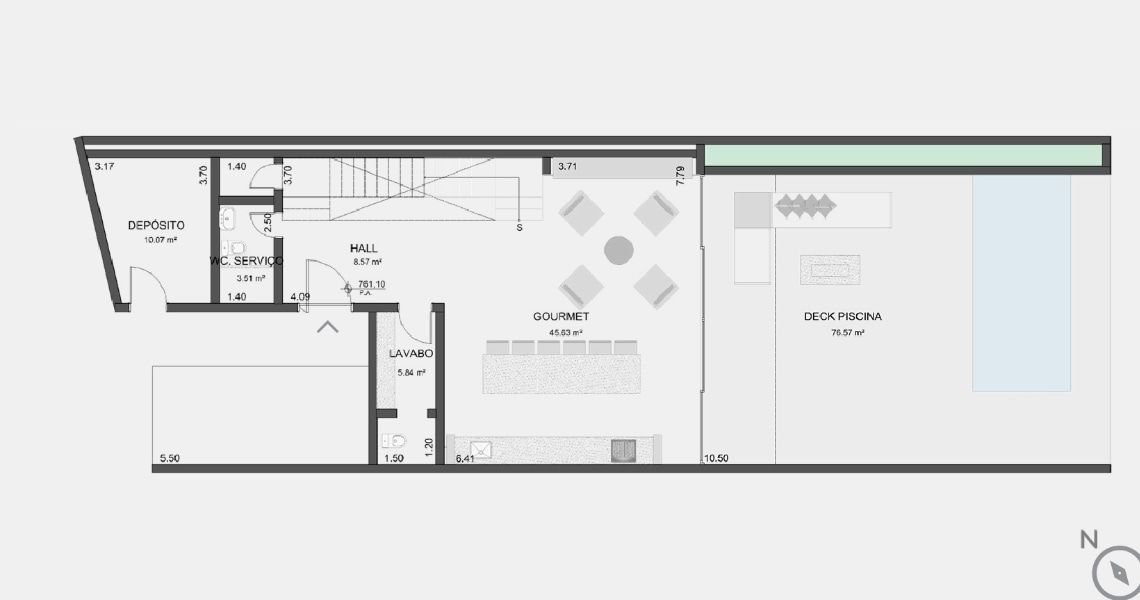
Complexo composto por 5 casas alto padrão com 4 suítes, gramado individual, rooftop e vagas demarcadas Todas as unidades contam com deck e piscina privativoas, integrados ao Gourmet, Jardim privativo e área para funcionários. Exclusividade e segurança em uma das melhores ruas do bairro!
5
casas
4
suítes
3
vagas
2.158m²
área do terreno










